Description
Set behind a sweeping carriage driveway is this beautiful family home approaching 8.000 sq ft in one of Hampstead Garden Suburbs most desirable roads located just off Winnington Road.
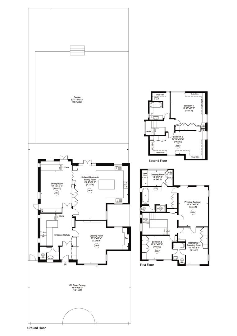
Arranged over 5 floors ,as you enter on the ground floor youre met by a very spacious and bright entrance hallway with a bespoke staircase leading to all floors. Further accommodation includes a stunning designer kitchen/breakfast/ family room with Gaggenhau wide fridge/freezer, double oven and gas hob, Miele dishwashers, a drawing room with built in bar and a dining room with custom made chandelier. all with Oak herringbone flooring throughout.
On the upper floors there are 4/5 bedrooms all with air conditioning and 3 bathrooms, including an indulgent principal bedroom suite with an oversized bathroom and 1-2 dressing rooms.
On the lower floors there is a magnificent games room which offers a huge amount of flexibility and could easily be used as a party room/disco, a cinema room with 5m screen and surround sound, a spacious gym with air conditioning overlooking into a 11.5m swimming pool with a sauna and changing room, 3 further bedroom suites with bathrooms and a utility room with Miele washer/ driers.
This Smart home benefits from underfloor heating to all floors, Lutron lighting, music server and CCTV inside and out, all controlled by a Savant app on a boosted WIFI system.
The garden to the rear has been landscaped and features a generous patio leading on to the lawn and raised play area for children.
Key Features
- ENTRANCE HALLWAY: DRAWING ROOM
- KITCHEN/BREAKFAST/FAMILY ROOM
- DINING ROOM: GUEST WC
- 6/8 BEDROOMS (1/2 EN SUITES & DRESSING ROOMS)
- 3 FAMILY BATHROOM
- STAFF BEDROOM & EN SUITE
- UTILITY ROOM: CINEMA ROOM
- GAMES ROOM: GYM: SWIMMING POOL: SAUNA/CHANGING ROOM
- REAR LANDSCAPED GARDEN
- OFF-STREET PARKING
VIEW PAYABLE STAMP DUTY
£7,875,000 £873,750
Effective Rate: 11.1%
| Tax Band | % | Taxable Sum | Tax |
| £0 - £125,000 | 0% | £125,000 | £0 |
| £125,001 - £250,000 | 2% | £125,000 | £2,500 |
| £250,001 - £925,000 | 5% | £675,000 | £33,750 |
| £925,001 - £1,500,000 | 10% | £575,000 | £57,500 |
| £1,500,001 + | 12% | £6,500,000 | £780,000 |
| Tax Band | % |
| £0 - £125,000 | 0% |
| £125,001 - £250,000 | 2% |
| £250,001 - £925,000 | 5% |
| £925,001 - £1,500,000 | 10% |
| £1,500,001 + | 12% |
| Taxable Sum | Tax |
| £125,000 | £0 |
| £125,000 | £2,500 |
| £675,000 | £33,750 |
| £575,000 | £57,500 |
| £6,500,000 | £780,000 |
Interested in similar properties?
Call sales between 9am and 7pm Monday to Friday and 10am to 1pm on Saturday on:
020 8458 7311
or email us via the form below:













